LOCAL COMERCIAL Moneda - Bandera
    LOCAL COMERCIAL Moneda - Bandera
    LOCAL COMERCIAL Moneda - Bandera
    LOCAL COMERCIAL Moneda - Bandera
    LOCAL COMERCIAL Moneda - Bandera
    LOCAL COMERCIAL Moneda - Bandera
    LOCAL COMERCIAL Moneda - Bandera
    LOCAL COMERCIAL Moneda - Bandera
    LOCAL COMERCIAL Moneda - Bandera
    LOCAL COMERCIAL Moneda - Bandera
    LOCAL COMERCIAL Moneda - Bandera
    LOCAL COMERCIAL Moneda - Bandera
    1/12

    LOCAL COMERCIAL Moneda - Bandera

    CLF 478,20

    Santiago

    Publicado: 26/07/2024


    Publicado por

    AJ

    Características principales

    Recámaras
    Baños
    Parking

    Especificaciones

    LocalizaciónSantiago
    Publicado26/07/2024
    Precio/M² de construcción
    Precio/M² de terreno
    Tamaño del lote
    Dirección exacta
    Costos de mantenimiento
    Altura
    Año de construcción
    Niveles
    Balcón/Terraza
    Piscina
    Tipo de pisos
    Piso número
    PDF con info de la propiedad

    Sobre la propiedad

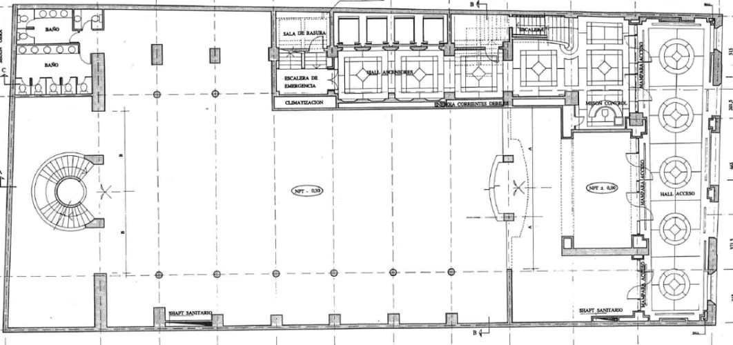
    Local en arriendo habilitado a pasos de metro estación Universidad de Chile, y de la principal avenida de la ciudad, Av. Libertador Bernardo O’Higgins. 1594 m² aprox. Local UF 0,30/m². Bodegas UF 2,5 / Unidad. Valores + IVA. Gasto común aprox: 0,11 UF/m² /mes (variable). Edificio Clase B, año 1997, seguridad con sala de control, sistema de climatización y sistema de detección de incendios.
    Disponibilidad Inmediata. Arrienda Alejandro Jaime & Asociados - Realty Corp.

    Ubicación

    Cargando mapa